Caerleon Mudgee

Having secured a large rural landholding in Mudgee, Davis Stack has successfully rezoned this greenfield site to residential. This rezoning provides for over 1200 homes to be built within this master planned estate over the coming years — making it one of regional NSW's largest developments.

The first DA secured allows for the immediate construction of over 260 homes and a child care centre. The following stages will include neighbourhood shops, a large, centrally located park that allows for a mix of sporting and recreational uses plus a further 1000 homes on lot sizes ranging from 450m2 to 2 acres and above.

For more information on this project, visit www.caerleon.com.au .


27 Connor St, Burleigh Heads

After securing this high-profile corner site, Davis Stack, working with its investment partners, undertook an extensive redevelopment of it.

The development comprised a significant renovation of the existing building which has been standing for over forty years and now accommodates five retail premises at ground level including three national tenancies.


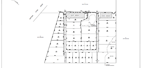
Captain Cook Drive, Kurnell

Davis Stack was engaged by the owner to assist in maximizing the sales price for this 10 hectare industrial site in Kurnell. After managing the ecological and environmental issues of the site, Davis Stack worked with the owner to secure an industrial unit subdivision while also overseeing the leasing up of the existing warehouses within the property.

With the subdivision approved and new tenants for the warehouses, Davis Stack then oversaw the successful execution of an extensive sales and marketing campaign that resulted in the property selling for more than 20% above valuation.


Back to top